info@familyhome.co.th
02-509-4972-3
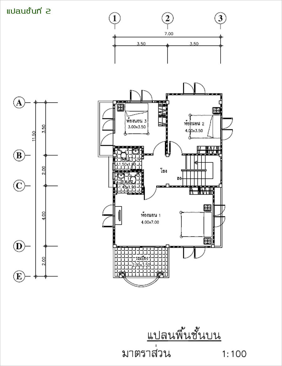
F-141 แบบบ้าน 2 ชั้น
3 ห้องนอน, 3 ห้องน้ำและที่จอดรถ 1 คัน
ขนาดของอาคาร กว้าง 9.00 ม. ลึก 11.50 ม.   พื้นที่ใช้สอย 186.50 ตร.ม.
ขนาดที่ดิน กว้าง 12.00 ม. ลึก 16.00 ม.   ปลูกสร้างบนที่ดิน 48 ตร.ว.
แบบบ้านที่แล้ว   |   แบบบ้านถัดไป
แบบบ้านที่แล้ว   |   แบบบ้านถัดไป
  • หน้าหลัก
    • ข่าวประชาสัมพันธ์
  • บริการของเรา
    • หลักเกณฑ์การรับสร้างบ้าน
    • การรับประกันงานก่อสร้าง
    • สัญญาและการชำระค่าใช้จ่าย
  • แบบบ้านมาตรฐาน
    • ค้นหาแบบบ้าน
    • แบบบ้านมาตรฐาน
  • ลูกค้าของเรา
  • เกี่ยวกับบริษัท
    • ประวัติความบริษัท
    • จุดเด่นของบริษัท
    • นโยบายของบริษัท
  • ติดต่อเรา
    • แผนที่บริษัท
    • ส่ง E-MAIL
บริษัท แฟมมิลี่โฮม (1999) จำกัด
139 ซ.รามอินทรา 40 ถ.รามอินทรา แขวงนวลจันทร์ เขตบึงกุ่ม กทม. 10230
TEL:02-509-4972-3  FAX:02-948-8424
E-MAIL: info@familyhome.co.th, sale@familyhome.co.th  WEBSITE:www.familyhome.co.th
All Rights Reserved ©FamilyHome (1999) co.,ltd
websiteนี้แสดงผลได้เต็มที่กับ firefox 9.0 ขึ้นไป, Internet Explorer 9 และ Google Chrome